Neues Raumbuchmodul für eine ideale Raumdatenverwaltung
Das neue Raumbuchmodul in LINEAR Building stellt einen entscheidenden Schritt für die BIM-konforme Planung dar. Es ermöglicht in frühen Planungsphasen die Verwaltung digitaler, maschinenlesbarer Raumparameter – unabhängig davon, ob ein vollständiges CAD-Gebäudemodell vorliegt oder die Daten aus Excel stammen. Die seit Version 25.2 bestehende Excel-Raumbuchsynchronisation wurde in Version 26.0 umfassend erweitert. Das neue Modul kann prinzipiell alle denkbaren Raumparameter speichern, anzeigen, bearbeiten, prüfen und berechnen. Dabei werden native LINEAR-Parameter, benutzerdefinierte Parameter sowie CAD- und Excel-Importe gleichermaßen unterstützt.
Für eine effiziente Organisation nutzen Sie individuell anpassbare Strukturkonfigurationen: Neben der klassischen Gebäudestruktur können Räume nach Raumtyp, Zonen oder anderen Kriterien gruppiert werden. Die Datenerfassung erfolgt in thematisch gegliederten Eigenschaftensätzen, die übersichtlich tabellarisch dargestellt werden. Intelligente Filter, Sortierfunktionen und automatische Plausibilitätsprüfungen helfen bei der sofortigen Erkennung von Fehlern und Abweichungen.
Die im Raumbuchmodul gesammelten Informationen sind eine wertvolle Grundlage für Berechnungen, z. B. der Heiz- und Kühllast, und werden über alle relevanten LINEAR-Planungsmodule hinweg synchronisiert. Das Raumbuch dient als zentrale Datensammelstelle, die dauerhaft gepflegt und von allen Projektbeteiligten genutzt werden kann.
Vorteile auf einen Blick:
- BIM-konforme Verwaltung digitaler Raumparameter aus CAD oder Excel
- Flexible und individuelle Strukturkonfigurationen für maßgeschneiderte Gliederungen
- Thematisch sortierte Eigenschaftensätze mit Filter-, Sortier- und Plausibilitätsfunktionen
- Unterstützung der automatischen Datenprüfung und Soll-/Ist-Vergleiche
- Nahtlose Synchronisation und Datenfluss über alle Planungsphasen und Module hinweg
- Zentrale Datensammlung für kollaboratives Arbeiten und effiziente Projektsteuerung
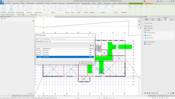
Automatische Dimensionierung in der Trassenplanung
Die bewährte Trassenplanung wurde um ein leistungsstarkes Berechnungsmodul erweitert. Damit können bereits in frühen Planungsphasen Kanal- und Leitungsdimensionen einfach, schnell und präzise über die Verteilnetz-Topologie der geplanten Trassen ermittelt werden – auf Basis vorhandener Rauminformationen.
Leistungs- und Volumenstromdaten werden direkt aus den MEP-Räumen übernommen. So können Planer bereits in einer frühen Phase zentrale Gebäudedaten in LINEAR Building erfassen und automatisch in die MEP-Räume übertragen:
- Wärmebedarf → überschlägige Heizlast
- Kältebedarf → Kühllast nach Kurzverfahren
- Außenluftvolumenströme → überschlägige Luftmengenermittlung
- Abwasser-/Trinkwasserverbraucher → Erfassung über das neue Raumbuchmodul
Über Einspeise-, Sammel- und Übergabepunkte – ähnlich den bekannten „Teilnetzstart/-ende"-Objekten – werden den Trassen weitere dimensionierungsrelevante Informationen zugewiesen:
- Definition von Erzeugeranlagen
- Zugeordnete Systemklassen
- Spreizung (Vorlauf/Rücklauf)
- Deckungsgrad der definierten Bedarfe durch jeweilige Systeme
- Weitere Randbedingungen für die Berechnung
Durch das Zusammenfassen mehrerer Räume zu Versorgungsbereichen mit Sammelpunkten lassen sich Haupttrassen besonders effizient dimensionieren. Über die konstruierten Trassen und passend zugewiesenen Systeme in den Start- und Endbauteilen werden die Leistungen automatisch eingesammelt und abschnittsweise dimensioniert. Die ermittelten Dimensionen können anschließend direkt im bekannten Trassenkonzept weiterverwendet werden – von der Definition der Querschnitte bis zur automatischen Generierung vordimensionierter Leitungen im Modell.
Vorteile auf einen Blick
- Höhere Planungssicherheit durch frühe, präzise Dimensionierung
- Reduzierter Planungsaufwand durch automatische Berechnung in frühen Phasen
- Durchgängige Datenkonsistenz von der Bedarfsdefinition bis zur Modellgenerierung
- Effiziente, transparente und BIM-konforme Planung über alle Gewerke
Mit dem neuen Berechnungsmodul wird die Trassenplanung zu einem integralen Bestandteil der frühen Entwurfs- und Vorplanungsphase.
3D-Visualisierung von MEP-Raum-Parametern
Mit der Raumdaten-Visualisierung stellen Sie sämtliche Parameter Ihrer MEP-Räume anschaulich in einer 3D-Ansicht dar. Die Funktion erzeugt farbige Visualisierungskörper für Ihre ausgewählten Raumparameter zunächst in einer temporären Ansicht – ideal zur schnellen Analyse und Bewertung Ihrer Planungsdaten. So haben Sie eine anschauliche Visualisierung in allen Planungsphasen, die Sie für unterschiedlichste Zwecke einsetzen können: Überprüfen Sie beispielsweise in frühen Phasen Raumgrößen, Belegungen oder Raumtypen, oder kontrollieren Sie schnell und intuitiv die Auslegungstemperaturen Ihrer Planung. Stetige Parameter wie Temperaturen oder Volumenströme werden über anpassbare Farbverläufe dargestellt, diskrete Parameter wie Raumtypen oder Nutzungsarten automatisch eingefärbt. Sobald die Visualisierung Ihren Anforderungen entspricht, können Sie die temporäre Ansicht speichern und damit in eine dauerhaft verfügbare Revit-Ansicht umwandeln, die Sie jederzeit für Pläne oder Präsentationen nutzen können.
Vorteile auf einen Blick
- Schnelle Analyse durch temporäre 3D-Ansichten mit farbigen Visualisierungskörpern und automatischer Legende
- Flexible Visualisierung stetiger und diskreter Datentypen mit individuellen Farbschemata
- Einsetzbar in allen Planungsphasen – von der frühen Raumkonzeption bis zur finalen Auslegungsprüfung
- Speicherung wiederverwendbarer Ansichten für professionelle Dokumentation und Präsentationen
Diese innovative Visualisierungsfunktion macht komplexe Raumdaten sofort erfassbar und gibt Ihnen volle Kontrolle über Ihre Analyseansichten in jedem Projektstadium.
Neutrale Stücklisten auf Knopfdruck – Herstellerinformationen gezielt entfernen, Kurztexte individuell bearbeiten
Sie möchten Ihre Berechnungen mit Herstellerbauteilen durchführen, benötigen aber herstellerneutrale Stücklisten? Mit der Option „Material herstellerneutral ausgeben“ ist das ab sofort problemlos möglich. Sämtliche Herstellerinformationen werden automatisch aus der Stückliste entfernt – ideal für neutrale Ausschreibungen oder projektübergreifende Listenausgaben.
Zusätzlich können Sie alle Kurztexte individuell anpassen, etwa jene, die aus dem CAD-Browser oder von User-Armaturen übernommen wurden. So ergänzen Sie flexibel projektspezifische Infos und gestalten Ihre Stücklisten exakt nach Ihren Anforderungen.
Vorteile auf einen Blick
- Herstellerneutrale Stückliste mit nur einem Klick
- Kurztexte individuell anpassbar für vollständige Kontrolle
- Flexible Ergänzung zusätzlicher Informationen jederzeit möglich
- Optimale Transparenz für Ausschreibungen, Vergaben und Dokumentation
Effiziente Schema-Bearbeitung mit dem neuen LINEAR Schema-Editor
Der Schema-Editor revolutioniert die Schemabearbeitung in Revit: Bearbeiten Sie Ihre Schemata direkt – egal, ob sie aus Revit-Modellen abgeleitet oder aus LINEAR Building übertragen wurden – ohne dabei Komponentenverbindungen zu verlieren. Beim Verschieben von Elementen werden Leitungen und eingebaute Komponenten automatisch nachgeführt. Keine manuellen Reparaturen mehr, keine aufgebrochenen Verbindungen. Mit intelligenten Layoutfunktionen (Umlegen, Flippen, Ausrichtung) passen Sie Ihre Schemata flexibel an neue Anforderungen an – in Sekunden statt Stunden. Alle Änderungen werden zuverlässig in die Zeichenansicht zurückgeschrieben. So bleibt Ihre Schemabearbeitung konsistent und effizient.
Vorteile auf einen Blick
- Automatische Nachführung aller Verbindungen – kein Nachbearbeiten nötig
- Intelligente Layoutfunktionen für schnelle und flexible Anpassungen
- Flexible Layoutanpassung durch Umlegen, Flippen und Ausrichtungsfunktionen
- Volle Modellintegrität – alle Änderungen in die Zeichenansicht zurückschreibbar
Das ist nur ein kleiner Auszug der kompletten V26-Featureliste! Lesen Sie jetzt weiter im What's New.


























